Additional rear dwelling
- Jarrod Suckling

- Jun 15, 2025
- 1 min read
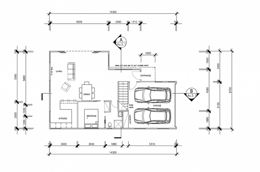
The brief was to add an additional dwelling at the rear of an existing site. With tight parameters we managed to squeeze in a appropriate dwelling which fitted within the development controls
Architectural Drawings:















Comments