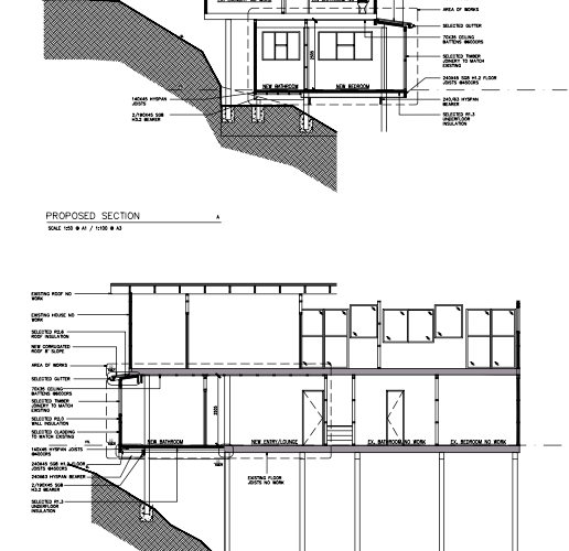
Browns Bay Renovation Jarrod SucklingFeb 15, 20241 min readUpdated: Oct 1, 2024An additional bedroom, bathroom and entryway to an existing 2 storey house in Browns Bay
Comments