Glen Eden Enhancement
- Jarrod Suckling

- Feb 15, 2024
- 1 min read
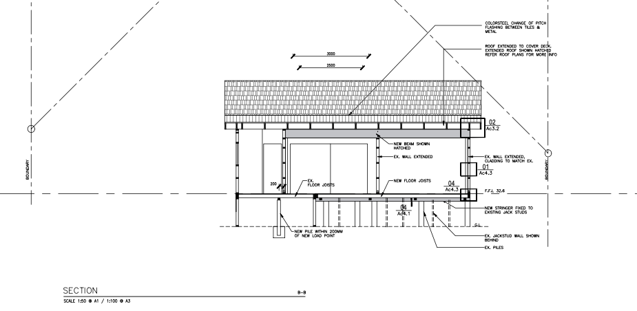
Revamping our clients space! We're renovating the deck, extending the living and dining room walls to match the laundry wall. Adding sleek glazed doors along the new wall creating a smooth transition from the dining room to the improved deck, now covered with a brand-new roof.























Comments