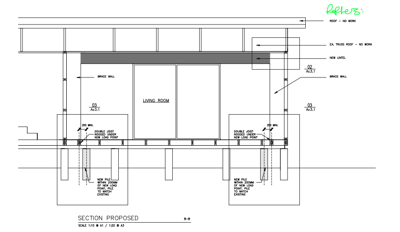
Upper Hutt Home UpgradeJarrod SucklingFeb 15, 20241 min readWe took down the wall between our clients living and dining areas, making room for a seamless, airy atmosphere in their kitchen space
Comments